Китай
- Выполняем гарантийные и сервисные обязательства, в штате сертифицированные инженеры-электронщики, инженеры-механики
- Проводим пусконаладочные работы и постгарантийное обслуживание
- Консультируем для самостоятельного проведения ТО
- Доставляем оперативно и своевременно
Модель PRATIC PHB обеспечивает высокоточную обработку в тяжелых условиях за счет конструкции подвижной траверсы. 3-осевой портальный обрабатывающий центр объединяет функции фрезерования, расточки, сверления, развальцовки, развертывания, жесткого нарезания резьбы, интерполяции и т.д. Поддерживает высокую точность и производительность.
Серия PHB применяется в обработке крупногабаритных алюминиевых, стальных деталей в отраслях, где требуется высокая точность обработки, например, в аэрокосмической промышленности, автомобилестроении, машиностроении, производстве пресс-форм.

Стабильная обработка на высоких скоростях
- Обеспечивается движение балки вдоль оси X, шпинделя вдоль оси Y, ползуна по оси Z.
- Рабочий стол и стойки зафиксированы с двух сторон.
- Используется надежный шпиндель HSK A63 с максимальной скоростью 20000 об/мин.

Гравитационная жесткость и устойчивость
- Снижена нагрузка на винт и направляющие за счет легкого веса движущих частей. Низкий износ и долгий срок службы станка.
- Мостовая конструкция обеспечивает жесткость и устойчивость к вибрациям на высоких скоростях.
- Симметричная пирамидальная форма станины повышает несущую способность и устойчивость.
- Фиксированный рабочий стол экономит место и обеспечивает большую грузоподъемность..

Повышенная надежность цельной конструкции
- Рабочий стол из литого чугуна, обработанный смоляным песком, имеет «коробчатую» структуру для высокой прочности.
- Компактная и надежная конструкция балки и салазок из чугуна обеспечивает жесткость балки.
- Балка имеет структуру усиленного ребра жесткости, не деформируется, устойчива к резке и изгибу.

Гибкие настройки системы ЧПУ
- Станок оснащен первоклассной системой ЧПУ Siemens или Fanuc.
- Встроены мощные функции, включая быструю передачу данных.
- Модульная и открытая архитектура с высокой масштабируемостью.
- Высокая производительность станка.
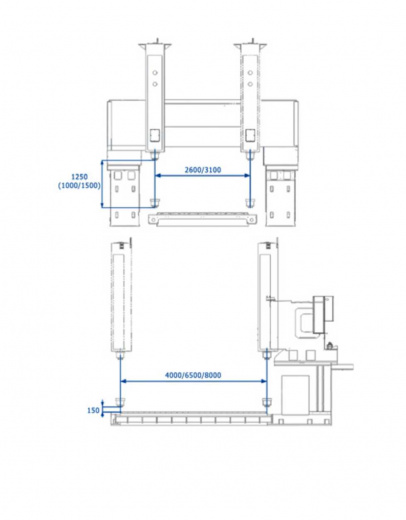
| PHB-2540 | PHB-2560 | PHB-2580 | PHB-3040 | PHB-3060 | PHB-3080 | |
| Рабочий ход | ||||||
| Ось X, мм | 4000 | 6000 | 8000 | 4000 | 6000 | 8000 |
| Ось Y, мм | 2600 | 3100 | ||||
| Ось Z, мм | 1250 (1000/1500) | |||||
|
Расстояние от шпинделя до поверхности стола, мм |
150-1400 | |||||
| Расстояние между столбцами, мм | 3400 | 3900 | ||||
| Шпиндель | ||||||
| Тип | Моторизованный | |||||
| Номинальная мощность, кВт | 15 | |||||
| Макс. скорость, об/мин | 20000 | |||||
|
Крутящий момент, Нм |
50 | |||||
| Конус |
HSK A63 |
|||||
| Конус, мм | 450х450 | |||||
| Скорость подачи | ||||||
| Ускоренная подача по осям X/Y/Z, м/мин | 30/30/30 | |||||
| Макс. скорость рабочей подачи по осям X/Y/Z, м/мин | 15/15/15 | |||||
|
Основные параметры |
||||||
| Размер рабочего стола, мм | 2500х4000 |
2500х6000 |
2500х8000 |
3000х4000 | 3000х6000 | 3000х8000 |
| Макс. нагрузка, кг/м² | 5000 | |||||
| Т-образный паз (кол-во / расстояние), мм | 22Н7/250 | |||||
| Габариты, мм | 8000х7500х4950 | 10200х7500х4950 |
12200х7500х4950 |
8000х8000х4950 |
10200х8000х4950 |
12200х8000х4950 |
Стандартная комплектация
- Система ЧПУ Siemens и Fanuc.
- Высокопрочная литая станина и рабочий стол из чугуна.
- Моторизированный шпиндель HSK A63.
- Высокопроизводительный серводвигатель X/Y/Z.
- Система автоматической подачи смазки.
- Система охлаждения.
- Цепной конвейер для автоматического удаления стружки.
Дополнительные опции
- Инструментальный магазин.
Обработка металла и прочих материалов фрезерованием — это способ, который не утрачивает своей актуальности и эффективности при достаточной простоте технологии. Данный метод является универсальным и многогранным, так как типов фрезеровки много и каждый имеет свои особенности и преимущества.
Начнем с того, что вам на предприятие поступил чертеж детали от заказчика с запросом: сделаете-не сделаете /затраты на производство данной детали. Ситуация рядовая, но быстро с ней справится только опытный технолог. Сколько времени понадобится вам для полного технико-экономического расчета производства детали? Предлагаем систематизировать ваши навыки чтения чертежей.
Оставьте заявку
Перезвоним в течение рабочего дня. Обсудим задачи, найдем оптимальное решение и запланируем работы.
Будем на связи!


